CANDLE

DESDE 400.000€

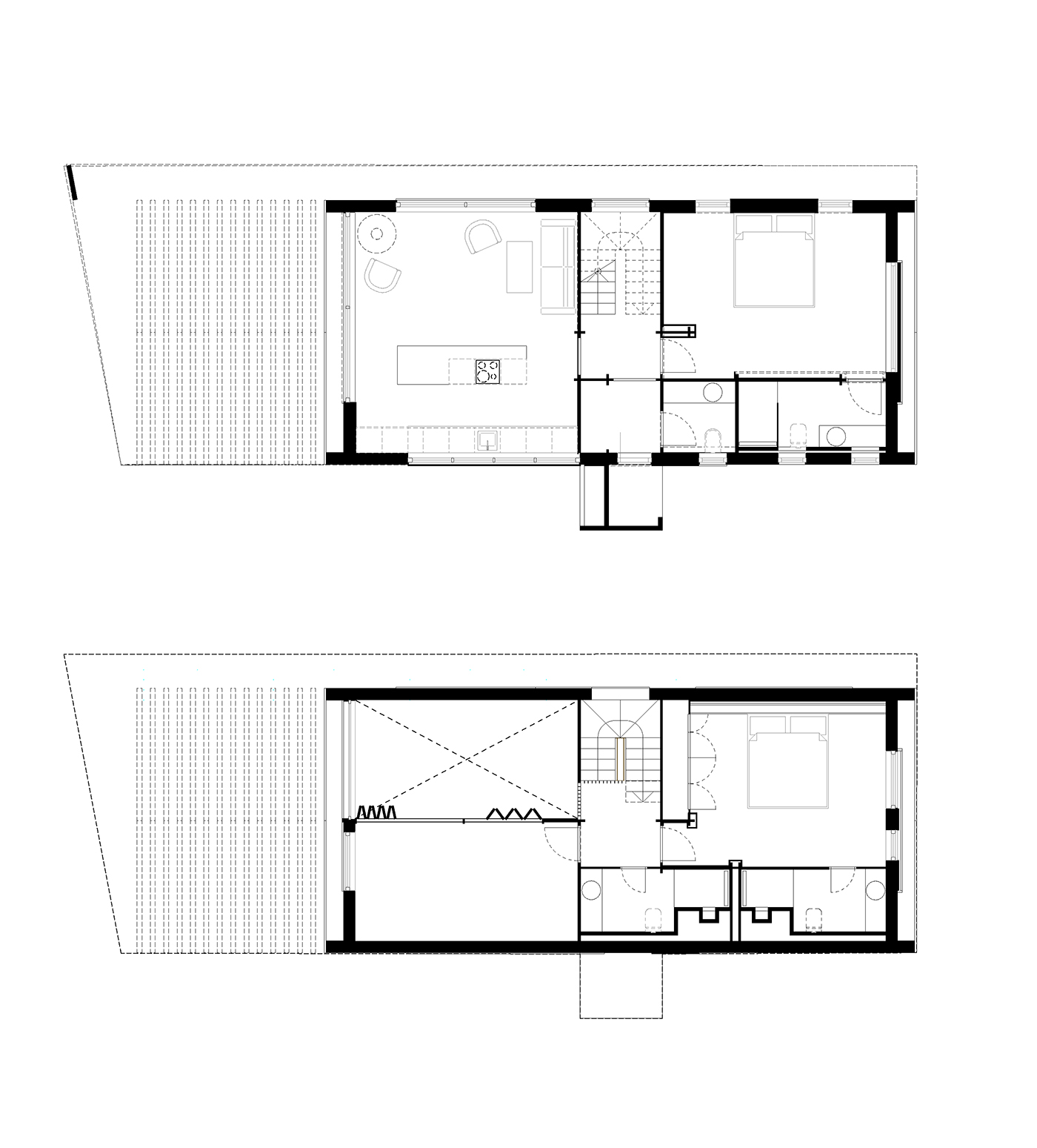
La casa de madera por excelencia. La casa Candle se estructura en dos plantas con cubierta a dos aguas y un espectacular salón a doble altura. Frente a los amplios ventanales la chimenea cobrará una potencia única. 

MODELO BASE

3 dormitorios

3 baños

Aseo

1 salón–comedor–cocina

Porche
Previous slide
Next slide
Puedes personalizar el modelo base según tu estilo de vida.