ORIGAMI

DESDE 390.000€

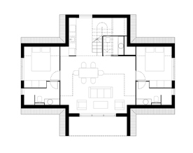
Estas dos A-Frame entrelazadas dan lugar a un espacio de salón a doble altura que fuga hacia el cielo. Las dos habitaciones principales en planta baja y las dos de invitados en la planta superior dan cabida a familia e invitados.

MODELO BASE

4 dormitorios
2 baños
1 estudio salón–comedor–cocina
Porche
Previous slide
Next slide
Puedes personalizar el modelo base según tu estilo de vida.