PAVILION

DESDE 310.000€

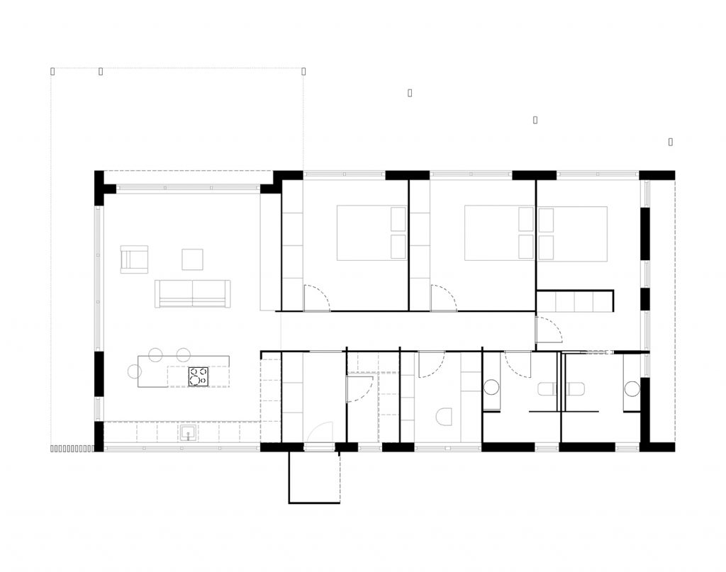
Protegida por una icónica pérgola, Pavilion se asienta sobre una planta, con cubierta a dos aguas y un espacio exterior generoso para respirar aire puro.

MODELO BASE

3 dormitorios

2 baños

1 estudio salón–comedor–cocina

Lavadero

Porche
Previous slide
Next slide
Puedes personalizar el modelo base según tu estilo de vida.